Project Details

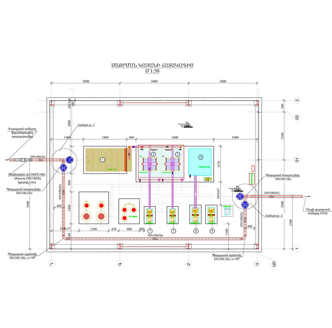
Development of design and cost-estimate documents for the construction of a drinking water headwork (river water intake) and treatment plant, as well as dismantling and reconstruction of the existing sand treatment plant in Baghanis settlement, RA Tavush region

Development of design and cost-estimate documents for the construction of a drinking water headwork (river water intake) and treatment plant, as well as dismantling and reconstruction of the existing sand treatment plant in Baghanis settlement, RA Tavush region




Project Details

N/A

Project Data

Funding Institution
RA State Budget
Client
Water Committee of RA MTAI
Co-Executors
--
Country
Armenia
Date
May – October 2025
Service
--
More Information
Вернуться к Проектам